Property Detail

Arf

Hayward CA 94545

$1,995,000

Status: Active

Property Details

Description

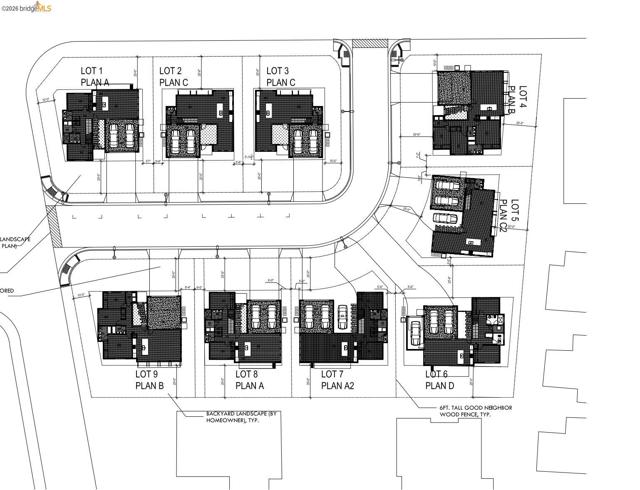
This property is ideal for residential development, offering flexibility and strong long-term demand. This is a rare chance to secure a large, well-located development site in Hayward, one of the most desirable growth areas in Northern California. Whether you're a builder, developer, or investor, this parcel is the perfect canvas for your next residential project for 9 tentative single family homes. Don't miss this rare opportunity.

Map Location

Listing provided courtesy of Noelle Borden of Merrill Signature Properties. Last updated 2026-04-14 08:21:41.000000. Listing information © 2025 CRMLS.

Steele Realty Group

Steele Realty Group

Real estate https://static.royacdn.com/Site-4f49a9be-20f3-4cec-be58-b7dc6a64d2f5/homepage_images/Screenshot_2021_07_16_161602.jpg realtor # # https://static.royacdn.com/Site-4f49a9be-20f3-4cec-be58-b7dc6a64d2f5/homepage_images/Screenshot_2021_07_16_161602.jpg