Property Detail

1654 Camino Del Mar

Del Mar CA 92014

$8,500

Status: Active

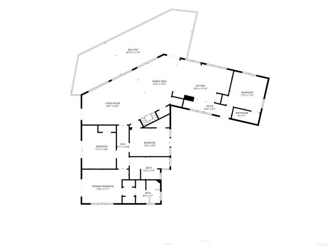
Property Details

Description

180 DEGREE OCEAN VIEW - QUINTESSENTIAL DEL MAR COTTAGE - unbelievable white water ocean views from all rooms except the office. Approximately 2,000 square feet, this upper unit of a duplex has a great room with an extra large kitchen with ample storage and a huge entertaining deck off the great room. This 3 bedroom darling cottage has a primary suite with stunning ocean views and a beautiful marble bath, 2 sinks and walk in shower. The second bedroom has a stunning ocean view and has a full bath with an antique tub and shower area. The third bedroom is en suite with a 3/4 bath. The office has a lovely terracotta floor and views to the extra large entry patio area. This home is light and bright and has incredible downtown access to the Village of Del Mar. Located just North of L'Auberge on the West side of Camino Del Mar. A property like this, with privacy and huge ocean views is rare in Del Mar. This house has excellent walking access to the race track, the fair, and the incredible trail system of the San Dieguito River Park. Do not be concerned with the location of Camino Del Mar as this house lives West and the noise does not impact the living areas. You will hear SURF SOUNDS more than traffic. Tenant applicants to use Rent Spree link https://apply.link/-LtFVM0

Map Location

Listing provided courtesy of Julie Split-Keyes of Willis Allen Real Estate. Last updated 2026-05-17 08:18:38.000000. Listing information © 2025 CRMLS.

Steele Realty Group

Steele Realty Group

Real estate https://static.royacdn.com/Site-4f49a9be-20f3-4cec-be58-b7dc6a64d2f5/homepage_images/Screenshot_2021_07_16_161602.jpg realtor # # https://static.royacdn.com/Site-4f49a9be-20f3-4cec-be58-b7dc6a64d2f5/homepage_images/Screenshot_2021_07_16_161602.jpg