Property Detail

13841 Malcom

Saratoga CA 95070

$5,350,000

Status: Active

Property Details

Description

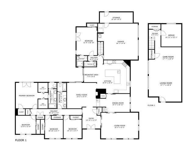
Welcome to 13841 Malcom, a beautifully updated one story executive residence with a bonus upstairs area, nestled in one of Saratoga's most desirable neighborhoods. Meticulously maintained throughout, the home features fresh interior paint, refinished hardwood floors, and new laminate flooring, creating a bright and inviting atmosphere. The elegant formal living and dining rooms overlook the manicured front yard, providing a refined setting for both everyday living and special gatherings. At the heart of the home, the gourmet eat-in kitchen showcases custom cabinetry and a thoughtfully designed layout that flows effortlessly into the patio and pool area ideal for seamless indoor-outdoor entertaining. The adjoining great room, anchored by a cozy fireplace, offers a warm and welcoming space for family and friends while enjoying views of the backyard. The spacious backyard is designed for memorable gatherings centered around a sparkling pool, featuring a custom outdoor kitchen, covered patio, and abundant space for relaxing. Ideally located just minutes from downtown Saratoga, with its renowned dining and boutique shopping and in close proximity to Foothill Elementary and Park. Award winning Saratoga High and offering convenient access to major commuter routes 9, 85, and S/S Rd.

Map Location

Listing provided courtesy of Andy Tse of Intero Real Estate Services. Last updated 2026-03-21 08:24:18.000000. Listing information © 2025 CRMLS.

Steele Realty Group

Steele Realty Group

Real estate https://static.royacdn.com/Site-4f49a9be-20f3-4cec-be58-b7dc6a64d2f5/homepage_images/Screenshot_2021_07_16_161602.jpg realtor # # https://static.royacdn.com/Site-4f49a9be-20f3-4cec-be58-b7dc6a64d2f5/homepage_images/Screenshot_2021_07_16_161602.jpg