Property Detail

4865 Merida

Oceanside CA 92057

$789,600

Status: Active

Property Details

Description

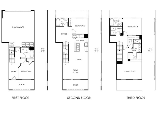
Brand new, energy-efficient home available by May 2026! Essence design package. Models Open March 2026! Introducing Pacifica, a new Oceanside, CA community of energy-efficient townhomes priced from the high $600,000s. Each home features Whirlpool® appliances, whole-home blinds, and 60-day quick-close timelines. Enjoy designer-curated finishes, smart home technology, and amenities including pickleball courts, dog park, playgrounds, and BBQ areas—all designed for a vibrant coastal lifestyle. Each of our homes is built with innovative, energy-efficient features designed to help you enjoy more savings, better health, real comfort and peace of mind.

Map Location

Listing provided courtesy of Shawn Black of Meritage Homes of California. Last updated 2026-03-21 08:24:18.000000. Listing information © 2025 CRMLS.

Steele Realty Group

Steele Realty Group

Real estate https://static.royacdn.com/Site-4f49a9be-20f3-4cec-be58-b7dc6a64d2f5/homepage_images/Screenshot_2021_07_16_161602.jpg realtor # # https://static.royacdn.com/Site-4f49a9be-20f3-4cec-be58-b7dc6a64d2f5/homepage_images/Screenshot_2021_07_16_161602.jpg