Property Detail

14250 Polaris

Mendocino CA 95460

$385,000

Status: Active

Property Details

Description

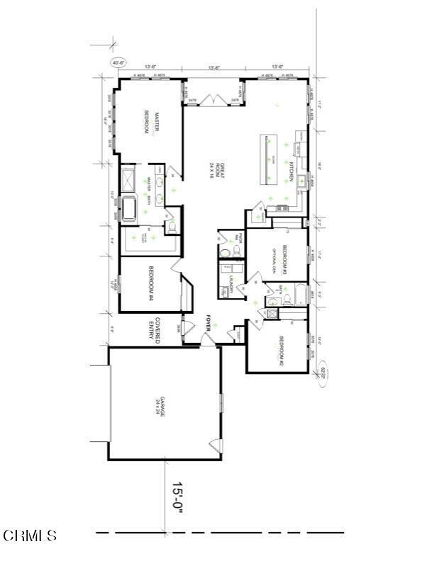
Beautiful ocean view parcel in the sought after Caspar South neighborhood that benefits from easy hookups to Caspar South mutual water and septic. This is a quality water system providing excellent water and ample storage to supply the neighborhood. A community greenbelt trail to the scenic ocean bluff borders this property and iconic Pt .Cabrillo Lighthouse is a picturesque hike along the Pacific. The property features a stand of graceful Monterey pines, filtered ocean views, and a level building site--the ideal setting for a coastal home. Parcels in Caspar South are typically 'Categorically Exempt' from the Coastal Review process- Check with Mendocino County Planning and Building for details. Significant groundwork has already been completed towards the installation of a custom home for the property. The current owners have invested over $150,000 toward plans for a thoughtfully designed Cavco Smart Home--a factory-built residence with 4 bedrooms, 2.5 baths, and an attached garage. The timeless design emphasizes clean lines, comfort, and a strong connection to the surrounding landscape. These plans are available separately for $100,000. For a buyer, this presents an opportunity to step into a well-prepared project with key elements already in place, including site preparation and substantial monetary credit for deposits and site prep. For those who are seeking to build their custom dream home, this property won't disappoint.

Map Location

Listing provided courtesy of Michelle Deering of Century 21 Fort Bragg Realty. Last updated 2026-03-25 08:21:20.000000. Listing information © 2025 CRMLS.

Steele Realty Group

Steele Realty Group

Real estate https://static.royacdn.com/Site-4f49a9be-20f3-4cec-be58-b7dc6a64d2f5/homepage_images/Screenshot_2021_07_16_161602.jpg realtor # # https://static.royacdn.com/Site-4f49a9be-20f3-4cec-be58-b7dc6a64d2f5/homepage_images/Screenshot_2021_07_16_161602.jpg