Property Detail

1098 Barberry

Sunnyvale CA 94086

$1,588,000

Status: Active

Property Details

Description

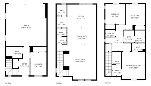
Location, location, location! Welcome to this stunning, like-new quiet corner-unit townhome in Sunnyvales desirable Lawrence Station community. Meticulously cared for, this home features an east-facing entrance and is just a short walk to Lawrence Caltrain, offering effortless access to Silicon Valley and the greater Bay Area. This true townhome features LOW HOA dues (including trash), smart-home upgrades, and dual-zone heating and A/C. The ground level includes a private bedroom and full bathroom, ideal for a home office, gym, or guest space. The main level showcases a bright open-concept design with a gourmet kitchen featuring a massive island, breakfast bar seating, and a spacious pantry. A built-in desk creates a perfect work-from-home nook. Upstairs, the oversized owners suite offers dual sinks, a walk-in shower, and a large upgraded walk-in closet. Two additional bedrooms, an upper-level full bathroom, convenient laundry, and a side-by-side two-car garage complete the home. Community amenities include a BBQ area and security cameras. Ideally located near Downtown Sunnyvale, major tech campuses, parks, and playgrounds. Don't miss this exceptional opportunity!

Map Location

Listing provided courtesy of Anna Lu of Legend Realty & Finance Group. Last updated 2026-02-19 09:16:42.000000. Listing information © 2025 CRMLS.

Steele Realty Group

Steele Realty Group

Real estate https://static.royacdn.com/Site-4f49a9be-20f3-4cec-be58-b7dc6a64d2f5/homepage_images/Screenshot_2021_07_16_161602.jpg realtor # # https://static.royacdn.com/Site-4f49a9be-20f3-4cec-be58-b7dc6a64d2f5/homepage_images/Screenshot_2021_07_16_161602.jpg