Property Detail

6328 Zulmida

Newark CA 94560

$1,430,000

Status: Active

Property Details

Description

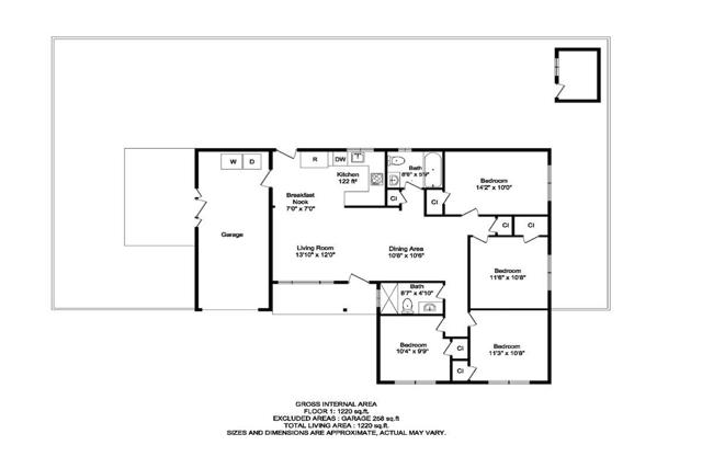
Step into this permitted new expansion and meticulously designed home, recently upgraded from 3B1B 939 sqft to 4B2B 1229 sqft, offering a modern open layout with more living space and functionality. Situated on an expansive corner lot of 6,900 sqft, this home reflects quality and care from the low-maintenance front yard and countless elegant upgrades. The home showcases SPC 8mm flooring, new double-pane shatter-resistant windows, new interior doors, and recessed lighting. The stylish kitchen features elegant two-tone slim shaker cabinets and quartz countertop with backsplash, stainless steel Samsung appliances, a smart gas range with integrated griddle, and modern fixtures. The new bathroom showcases high-end wall and floor tile finishes, a new TOTO toilet, a Delta shower system, and a marble-top vanity. Four spacious rooms with a well-designed layout provide an enhanced living experience. The expansive yard is ideal for outdoor entertaining, gardening, or adding an ADU for extended living or rental potential. You can also enjoy climate comfort with mini split heating & cooling installed in all rooms as well as the benefits of paid-off solar panels. Just 5 minutes to Ranch 99 and 10 minutes to Costco. Convenient access to Highway 880 & Dumbarton Bridge, Meta, Tesla, and more.

Map Location

Listing provided courtesy of Bobo Cai of Maxreal. Last updated 2026-02-19 09:16:42.000000. Listing information © 2025 CRMLS.

Steele Realty Group

Steele Realty Group

Real estate https://static.royacdn.com/Site-4f49a9be-20f3-4cec-be58-b7dc6a64d2f5/homepage_images/Screenshot_2021_07_16_161602.jpg realtor # # https://static.royacdn.com/Site-4f49a9be-20f3-4cec-be58-b7dc6a64d2f5/homepage_images/Screenshot_2021_07_16_161602.jpg