Property Detail

1742 28Th Ave

Oakland CA 94601

$550,000

Status: Active

Property Details

Description

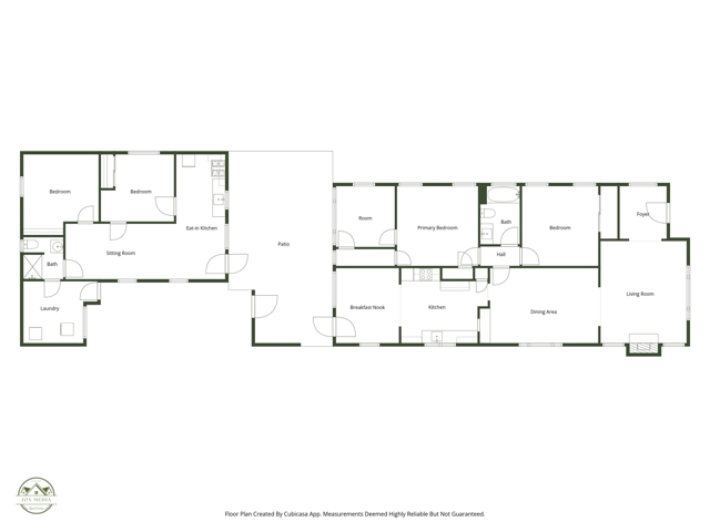
Welcome to this versatile and beautiful home in Oakland's Fruitvale district Currently configured as a 2-bedroom, this property offers the potential to easily convert into a 3-bedroom to suit your needs. Inside, enjoy brand-new laminate wood flooring throughout, an updated bathroom, and a new HVAC system providing year-round comfort. Major upgrades include sewer lateral and sidewalk compliance, offering peace of mind to the next owner. Adding exceptional value is a detached 2-bedroom ADU-ideal for rental income, extended family, or a home office. A fantastic opportunity for homeowners and investors alike.

Map Location

Listing provided courtesy of Robert Montanez of EXP Realty of California, Inc. Last updated 2026-02-19 09:16:42.000000. Listing information © 2025 CRMLS.

Steele Realty Group

Steele Realty Group

Real estate https://static.royacdn.com/Site-4f49a9be-20f3-4cec-be58-b7dc6a64d2f5/homepage_images/Screenshot_2021_07_16_161602.jpg realtor # # https://static.royacdn.com/Site-4f49a9be-20f3-4cec-be58-b7dc6a64d2f5/homepage_images/Screenshot_2021_07_16_161602.jpg