Property Detail

5065 Elata

Yucca Valley CA 92284

$475,000

Status: Active

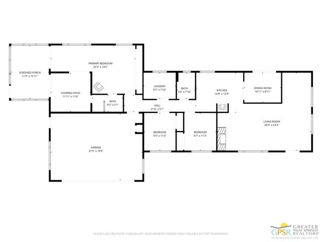
Property Details

Description

LOOKING FOR A PRIVATE WALLED GATED ESTATE TYPE PROPERTY? THIS IS IT. A unique property with a cabin type feel with a beautiful rock fireplace in the great room. Two small stove fireplaces one in the kitchen and one in the primary. Great floor plan with big primary with attached jacuzzi room and sun porch. HUGE PROPERTY with room for ADU, TENNIS COURT, POOL or extra garage buildings if you're a car collector or a contractor with work vehicles. Open and expansive desert views. THIS ONE IS SPECIAL AND HAS SO MUCH POTENTIAL.

Map Location

Listing provided courtesy of Bryan Burns of Desert Lifestyle Properties. Last updated 2026-02-19 09:16:42.000000. Listing information © 2025 CRMLS.

Steele Realty Group

Steele Realty Group

Real estate https://static.royacdn.com/Site-4f49a9be-20f3-4cec-be58-b7dc6a64d2f5/homepage_images/Screenshot_2021_07_16_161602.jpg realtor # # https://static.royacdn.com/Site-4f49a9be-20f3-4cec-be58-b7dc6a64d2f5/homepage_images/Screenshot_2021_07_16_161602.jpg