Property Detail

6665 Dolores

Paradise CA 95969

$390,000

Status: Active

Property Details

Description

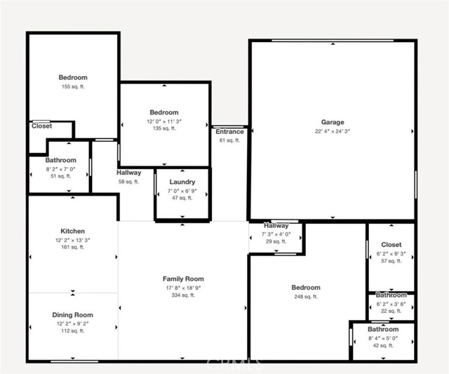
BRAND-NEW, MOVE-IN READY home in Paradise! This beautifully built 1,671 sq. ft., 3-bedroom, 2-bath country-style home offers a bright, open floor plan and modern finishes throughout. The kitchen features quartz countertops, a large center island, and all-new stainless steel appliances, including a gas range and oven, microwave, and dishwasher. The kitchen opens to the spacious family and living room, complete with a ceiling fan, making it perfect for entertaining. Additional highlights include a separate laundry room, laminate wood flooring throughout the main living areas, and carpeted bedrooms for comfort. The primary suite offers dual sinks, a large walk-in closet, and a private bathroom. Enjoy both a concrete front porch and a concrete backyard patio, ideal for outdoor living. The low-maintenance front yard is finished with decorative stone instead of grass for easy upkeep. The home also includes a finished two-car garage with painted sheetrock. Conveniently located near Highways 191, 70, 149, and 99 for easy commuting. Come see this charming new home today!

Map Location

Listing provided courtesy of Martin Mahmoudi of Blackbird Realty. Last updated 2026-02-19 09:16:42.000000. Listing information © 2025 CRMLS.

Steele Realty Group

Steele Realty Group

Real estate https://static.royacdn.com/Site-4f49a9be-20f3-4cec-be58-b7dc6a64d2f5/homepage_images/Screenshot_2021_07_16_161602.jpg realtor # # https://static.royacdn.com/Site-4f49a9be-20f3-4cec-be58-b7dc6a64d2f5/homepage_images/Screenshot_2021_07_16_161602.jpg