Property Detail

235 58th

Los Angeles CA 90037

$4,250

Status: Active

Property Details

Description

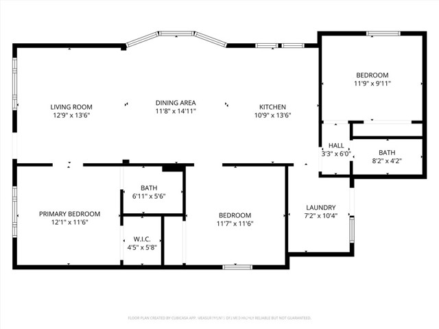
This remodeled Craftsman-style home offers generous space, modern upgrades, and a flexible layout ideal for families, professionals, or students seeking comfort & convenience. The expansive open floor plan creates a seamless flow between the living, dining, & kitchen area. Perfect for everyday living, studying, or entertaining. Highlights include custom ceramic tile flooring throughout, newer double-pane windows, recessed lighting, and a thoughtfully designed kitchen featuring custom poplar cabinetry, quartz countertops, & brand-new appliances. Home includes an inside laundry room with washer and dryer. The home is truly move-in ready & designed for low-maintenance living. Property’s standout features is its exceptional transit access. Located approximately a five-minute walk to the Metro Harbor Transitway / Slauson Station, residents enjoy access to multiple rapid bus lines offering direct, traffic-free connections to USC & major Downtown Los Angeles transit hubs in roughly 15 minutes. Additional nearby routes, including the 108 Slauson & 45 Broadway lines, make commuting easy without relying on a vehicle. Outdoor enthusiasts will appreciate the home’s proximity to the Slauson Corridor, just one block away, providing convenient options for walking, running, & biking. The property also features newly installed front-yard landscaping & a large backyard, ideal for outdoor activities, relaxation, or additional storage. The home is conveniently located near major entertainment & sports venues, including BMO Stadium (approximately six minutes away) & The Forum & SoFi Stadium (about 15 minutes away) This home offers space, comfort, and outstanding accessibility. An excellent opportunity for those seeking city living with room to breathe. **Applicants with housing vouchers including Section 8 are welcome to apply**

Map Location

Listing provided courtesy of Nancy Esquivias of First Team Real Estate. Last updated 2026-04-04 08:19:24.000000. Listing information © 2025 CRMLS.

Steele Realty Group

Steele Realty Group

Real estate https://static.royacdn.com/Site-4f49a9be-20f3-4cec-be58-b7dc6a64d2f5/homepage_images/Screenshot_2021_07_16_161602.jpg realtor # # https://static.royacdn.com/Site-4f49a9be-20f3-4cec-be58-b7dc6a64d2f5/homepage_images/Screenshot_2021_07_16_161602.jpg