Property Detail

10970 Ruth

Lynwood CA 90262

$724,500

Status: Active

Property Details

Description

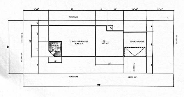
Welcome to this beautifully maintained and exceptionally versatile home in Lynwood! Offering far more than meets the eye, this property combines comfortable living with incredible practicality. HOME HIGHLIGHTS: Bright & Open Living:924 sq ft main home with 2 bedrooms, 1 bathroom, a welcoming living room, and a functional kitchen. Incredible Added Space: A fantastic 498 sq ft den with high ceilings provides endless possibilities—easily a family room, home office, gym, or 3rd bedroom. Total Spacious Living:1,422 sq ft of total living area for flexibility and comfort. Prime Outdoor Space: A fully fenced yard creates a private oasis and offers parking for up to 5 vehicles perfect for families with multiple cars, guests, or an RV. The fencing ensures added security and privacy. Garage & Laundry:Attached 2-car garage includes washer & dryer hookups for ultimate convenience. Ideal for an owner-occupier seeking space and potential, or an investor looking for a property with amazing utility. Don't miss this unique opportunity in Lynwood!

Map Location

Listing provided courtesy of Andre Durango of Remington RE Services. Last updated 2026-02-03 09:14:34.000000. Listing information © 2025 CRMLS.

Steele Realty Group

Steele Realty Group

Real estate https://static.royacdn.com/Site-4f49a9be-20f3-4cec-be58-b7dc6a64d2f5/homepage_images/Screenshot_2021_07_16_161602.jpg realtor # # https://static.royacdn.com/Site-4f49a9be-20f3-4cec-be58-b7dc6a64d2f5/homepage_images/Screenshot_2021_07_16_161602.jpg