Property Detail

730 Sunset Blvd

Hayward CA 94541

$800,000

Status: Active

Property Details

Description

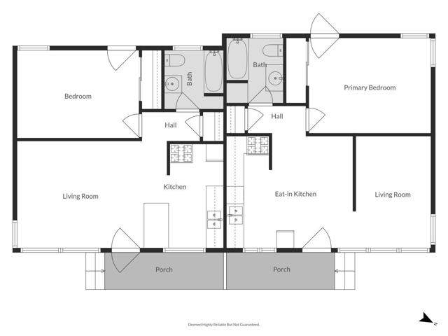
Well located duplex offering flexibility for both owner occupants and investors. Two separate one bedroom one bathroom units, each with its own private fenced backyard, plus front porch and front yard space. This is an uncommon combination for duplex properties and a major lifestyle advantage for long term occupancy. Both units feature bright, functional floor plans with good natural light and laminate flooring in the main living areas and bedrooms. Kitchens have been previously updated from original condition and remain clean and serviceable with practical layouts and ample cabinetry. One bathroom has had some updates, while the second bathroom is in good condition. One unit has been recently painted, while the remaining interior and exterior finishes reflect solid upkeep. Additional highlights include separate entrances, separate PG&E meters, and a two car carport with one designated space per unit. An excellent opportunity to live in one unit and rent the other, or to hold as a stable income property in a convenient Hayward location near shopping, dining, transit, and major commuter routes.

Map Location

Listing provided courtesy of Gabriel Heredia of Redfin. Last updated 2026-02-06 09:11:23.000000. Listing information © 2025 CRMLS.

Steele Realty Group

Steele Realty Group

Real estate https://static.royacdn.com/Site-4f49a9be-20f3-4cec-be58-b7dc6a64d2f5/homepage_images/Screenshot_2021_07_16_161602.jpg realtor # # https://static.royacdn.com/Site-4f49a9be-20f3-4cec-be58-b7dc6a64d2f5/homepage_images/Screenshot_2021_07_16_161602.jpg