Property Detail

179 Culver

Playa del Rey CA 90293

$2,300,000

Status: Active

Property Details

Description

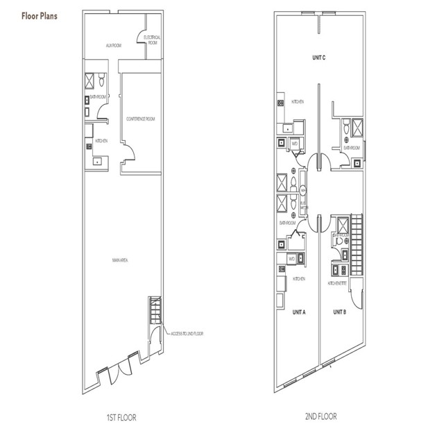
A rare opportunity in Playa Del Rey with this fully renovated Creative Office/Retail building located at 179-181 Culver Blvd, CA 90293. Approximately 3,174 interior square feet, this stand-alone building combines flexible live/work opportunities with a vibrant beachside address. Built in 1911 with a full remodel completed in 2023, presents a versatile live/work or investor-ready opportunity, just within walking distance to the beach. The building combines classic charm with modern amenities across two levels. The Ground floor: Open floor plan, light-filled space with 14’ ceilings, features include a newly installed kitchen with stove, updated restroom with shower, large storefront windows, and strong street presence with excellent signage opportunities. The Second floor: Offers Three furnished, updated live/work units, each with their own private restroom, shower, and washer/dryer. Layout: Total of 3 bedrooms and 3 bathrooms across the building (2 Studios, 1 bedroom with 4 bathrooms upstairs; 2 bedrooms and 1 bathroom downstairs), offering flexible occupancy options. Parking & Access: Ample nearby parking and a prime, highly visible location. Proximity: Steps from the beach and close to Venice, Marina del Rey, and LAX. Features: Classic brick façade, prominent ground-floor storefront; ready-to-occupy with updated kitchen and bath; move-in-ready opportunity for owner/user or investors. Excellent for owner/user occupancy, hybrid live/work setups, or multi-tenant investment. Ideal for creative agencies, boutique retailers, co-working concepts, or an investor seeking a premium Playa del Rey asset.

Map Location

Listing provided courtesy of John Ban of Hampton Realty & Investment. Last updated 2025-11-04 09:51:31.000000. Listing information © 2025 CRMLS.

Steele Realty Group

Steele Realty Group

Real estate https://static.royacdn.com/Site-4f49a9be-20f3-4cec-be58-b7dc6a64d2f5/homepage_images/Screenshot_2021_07_16_161602.jpg realtor # # https://static.royacdn.com/Site-4f49a9be-20f3-4cec-be58-b7dc6a64d2f5/homepage_images/Screenshot_2021_07_16_161602.jpg