Property Detail

257 Avenue 54

Los Angeles CA 90042

$3,749

Status: Active

Property Details

Description

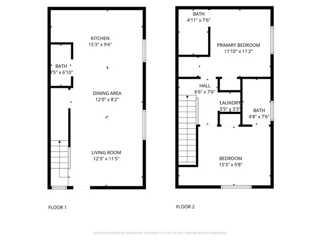
Brand New Construction in Highland Park! Welcome to 257 1/2 Avenue 54, a beautifully designed two-story townhouse offering 2 bedrooms and 2.5 bathrooms with high-end finishes and modern details throughout. The first floor showcases a spacious open-concept layout with living, dining, and kitchen areas seamlessly connected, highlighted by custom white oak cabinetry, quartz countertops, and a large center island. A stylish powder room adds convenience for guests on this level. Upstairs, you’ll find two master suites, each featuring its own en-suite bathroom for privacy and comfort. The washer and dryer closet is also conveniently located on the second floor. Designer upgrades include wide-plank white oak flooring, custom iron railings, recessed lighting, and spa-inspired bathrooms with quartz counters and porcelain tile. All appliances are included, and the home is equipped with a state-of-the-art mini-split HVAC system for individualized climate control. Additional highlights include solar panels for energy savings, EV charger-ready parking, and secured entry. Located in the heart of Highland Park, you’re just moments away from York Boulevard and Figueroa Street’s popular coffee shops, restaurants, and boutiques — including Highland Park Bowl, Kitchen Mouse, Civil Coffee, Café de Leche, and Hippo. Easy access to the Metro Gold Line makes commuting to Downtown LA or Pasadena a breeze.

Map Location

Listing provided courtesy of Drew Dunn of Four Brothers Real Estate, Inc.. Last updated 2025-11-03 09:19:08.000000. Listing information © 2025 CRMLS.

Steele Realty Group

Steele Realty Group

Real estate https://static.royacdn.com/Site-4f49a9be-20f3-4cec-be58-b7dc6a64d2f5/homepage_images/Screenshot_2021_07_16_161602.jpg realtor # # https://static.royacdn.com/Site-4f49a9be-20f3-4cec-be58-b7dc6a64d2f5/homepage_images/Screenshot_2021_07_16_161602.jpg