Property Detail

265 Boeing

Chico CA 95973

$1,235,040

Status: Active

Property Details

Description

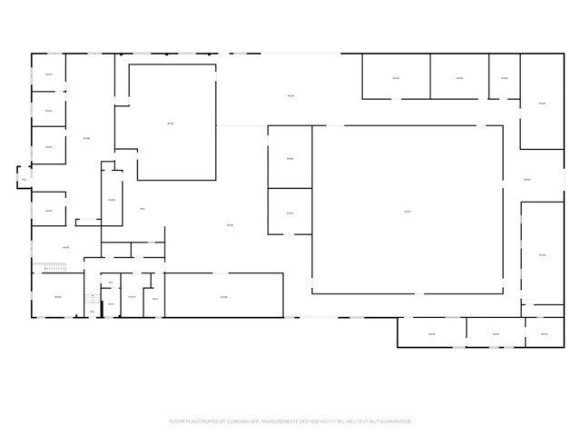
Located at 265 Boeing Avenue in Chico, CA, this ±19,920 SF wooden bow truss warehouse offers a functional mix of industrial and office space on a ±24,829 SF lot. Features include an oversized roll-up door, multiple offices and work areas, and wash sinks with washer/dryer connections. A ±6,000 SF fenced side yard provides valuable outdoor storage or operational space. Zoned for Airport Manufacturing with 480-volt, 800-amp, 3-phase power and gas service, the property supports a range of manufacturing, warehouse, and distribution uses.

Map Location

Listing provided courtesy of Carrie Welch of Capital Rivers Commercial Inc. Last updated 2026-04-05 08:19:04.000000. Listing information © 2025 CRMLS.

Steele Realty Group

Steele Realty Group

Real estate https://static.royacdn.com/Site-4f49a9be-20f3-4cec-be58-b7dc6a64d2f5/homepage_images/Screenshot_2021_07_16_161602.jpg realtor # # https://static.royacdn.com/Site-4f49a9be-20f3-4cec-be58-b7dc6a64d2f5/homepage_images/Screenshot_2021_07_16_161602.jpg