Property Detail

651 Thunderbolt

Chico CA 95973

$963,930

Status: Active

Property Details

Description

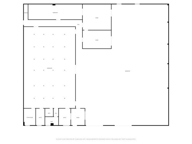
Warehouse with approximately 7,000+/- SF of fenced yard space, one grade-level roll-up door and one recessed truck-well, dock-high position (interior well). Significant power is available with 480 V/3 phase power with two three phase capacities, one ~30 kVA and one ~75 KVA offering flexibility for those users requiring heavy power capacity. Warehouse has fire suppression throughout and has numerous interior hose bibs. Office, break area and reception with HVAC. Metal roof with skylights and a large clear span work area.

Map Location

Listing provided courtesy of Carrie Welch of Capital Rivers Commercial Inc. Last updated 2026-04-05 08:19:04.000000. Listing information © 2025 CRMLS.

Steele Realty Group

Steele Realty Group

Real estate https://static.royacdn.com/Site-4f49a9be-20f3-4cec-be58-b7dc6a64d2f5/homepage_images/Screenshot_2021_07_16_161602.jpg realtor # # https://static.royacdn.com/Site-4f49a9be-20f3-4cec-be58-b7dc6a64d2f5/homepage_images/Screenshot_2021_07_16_161602.jpg